ЖК «Ода» Тула — полный обзор жилого комплекса, квартиры, планировки и преимущества
Жилой комплекс «Ода» в Туле — современный проект жилой недвижимости комфорт-класса, который строится в перспективном районе города. Комплекс сочетает современную архитектуру, функциональные планировки квартир и развитую инфраструктуру.
ЖК ориентирован на покупателей, которые ищут современные новостройки Тулы, комфортное жилье и удобное расположение рядом с городскими объектами инфраструктуры.
Проект создается с учетом современных требований к городской среде — благоустроенные дворы, продуманная инфраструктура и комфортные квартиры.
Расположение ЖК «Ода» в Туле
Жилой комплекс расположен в удобном районе города, на Одоевском шоссе в Туле (Петровский квартал), где сочетаются транспортная доступность и развитая инфраструктура.
Преимущества локации:
- быстрый доступ к центру Тулы
- развитая дорожная сеть
- рядом магазины и торговые центры
- школы и детские сады поблизости
Такая локация делает ЖК «Ода» удобным как для семей с детьми, так и для молодых специалистов.
Архитектура и концепция жилого комплекса Ода
ЖК «Ода» — это современный жилой квартал с продуманной архитектурой.
В проекте используется актуальный архитектурный стиль:
- лаконичные фасады
- современные материалы
- панорамные окна
- стильные входные группы
Основная идея комплекса — создать комфортную городскую среду, где жители смогут наслаждаться качественным жильем и благоустроенными дворами.
Квартиры в ЖК «Ода»
В жилом комплексе представлен широкий выбор квартир различных форматов.

Студии от 19 до 23 кв метров — от 3 362 000 руб

Однокомнатные квартиры от 37 до 40 кв метров — от 5 238 000 кв метров

Двухкомнатные квартиры от 55 до 91 кв метров от 6 294 000 кв метров

Трехкомнатные квартиры от 75 до 81 кв метров
Площадь квартир позволяет подобрать жилье для разных сценариев проживания — от компактных студий до просторных семейных квартир.

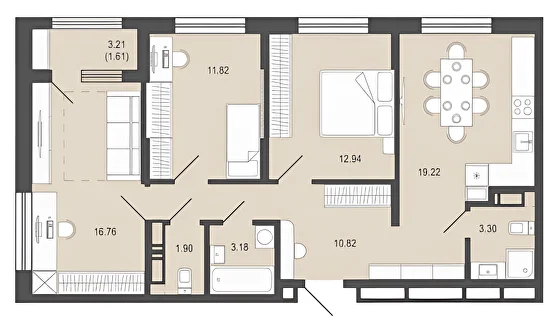
Современные планировки квартир в жилом комплексе Ода
Планировки квартир в ЖК «Ода» разработаны с учетом современных требований к комфортному жилью.
Особенности планировок:
- просторные кухни-гостиные
- большие окна
- удобные зоны хранения
- раздельные санузлы в семейных квартирах
Такие решения позволяют максимально эффективно использовать жилое пространство.
Благоустройство территории в жилом комплексе Ода
Одной из ключевых особенностей жилого комплекса является благоустроенная территория.
На территории комплекса планируется:
- современные детские площадки
- спортивные зоны
- прогулочные дорожки
- озеленение территории
Дворы комплекса будут оборудованы зонами отдыха и местами для прогулок.


Парковка и транспорт в ЖК Ода в Туле
Для жителей комплекса предусмотрены парковочные места, что позволяет решить проблему хранения автомобилей.
Также рядом с комплексом расположены остановки общественного транспорта, благодаря чему можно быстро добраться в разные районы города.
Инфраструктура района в жилом комплексе Ода
ЖК «Ода» расположен в районе с развитой инфраструктурой.
Рядом находятся:
- магазины и супермаркеты
- детские сады
- школы
- медицинские учреждения
- спортивные комплексы
Это делает проживание в комплексе удобным для повседневной жизни.
Квартиры для жизни и инвестиций
Покупка квартиры в ЖК «Ода» может быть выгодной не только для проживания, но и для инвестиций.
Причины инвестиционной привлекательности:
- современный жилой комплекс
- развивающийся район
- высокий спрос на новостройки
Недвижимость в новых жилых комплексах Тулы традиционно пользуется спросом на рынке аренды и перепродажи.
Почему стоит купить квартиру в ЖК «Ода»
Основные преимущества комплекса:
✔ современный жилой квартал комфорт-класса
✔ удобное расположение в Туле
✔ разнообразные планировки квартир
✔ благоустроенная территория
✔ развитая инфраструктура
Благодаря этим характеристикам ЖК «Ода» является интересным вариантом среди новостроек Тулы.
Планировки квартир в ЖК Ода в Туле
В жилом комплексе доступны различные планировочные решения.
Типы квартир:
- студии — компактное жилье для одного человека
- 1-комнатные квартиры — популярный формат для молодых семей
- 2-комнатные квартиры — оптимальный вариант для семьи
- 3-комнатные квартиры — просторное жилье
Планировки отличаются функциональностью и современным подходом к организации пространства.
Кому подойдет ЖК «Ода»
Жилой комплекс подойдет:
👨👩👧👦 семьям с детьми
🏢 молодым специалистам
💰 инвесторам
🏡 людям, которые хотят купить квартиру в новостройке Тулы
Часто задаваемые вопросы про жилой комплекс Ода в Туле
Где находится ЖК «Ода» в Туле?
ул. Маршала Жукова, 7/1 — Комплекс расположен в удобном районе города с хорошей транспортной доступностью.
Какие квартиры есть в ЖК «Ода»?
В комплексе доступны студии, 1-, 2- и 3-комнатные квартиры.
Подходит ли ЖК для семей?
Да. Рядом находятся школы, детские сады и зоны отдыха.
Можно ли купить квартиру в ипотеку?
Как правило, новостройки Тулы предлагают ипотечные программы и различные варианты покупки.
Галерея фото ЖК Ода в Туле









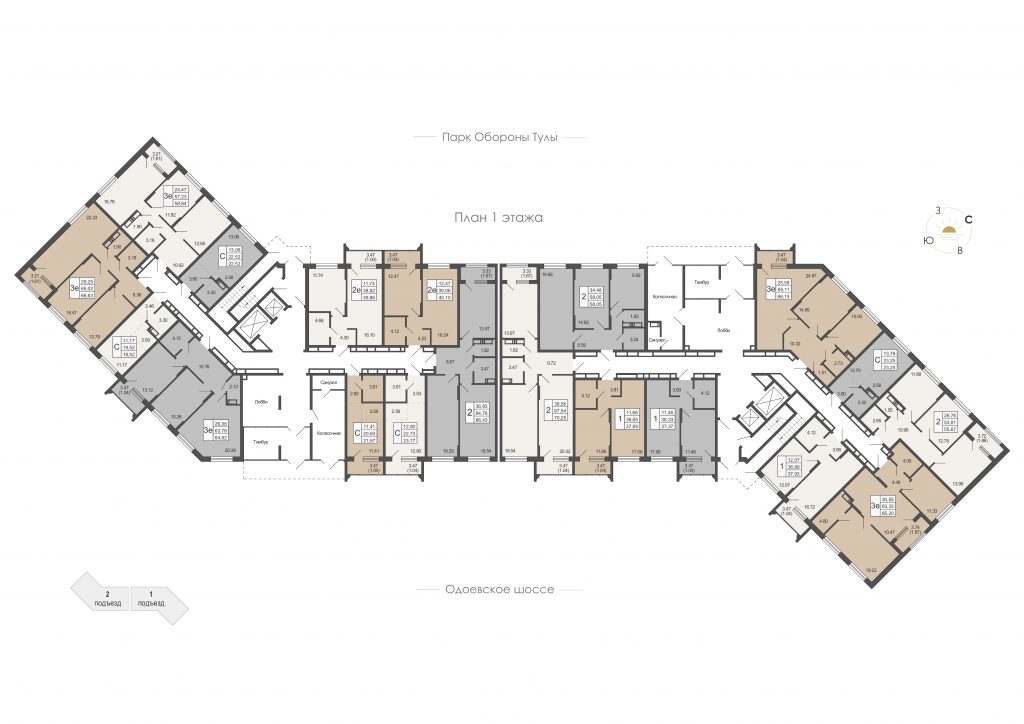
Поэтажные планировки 1 этаж

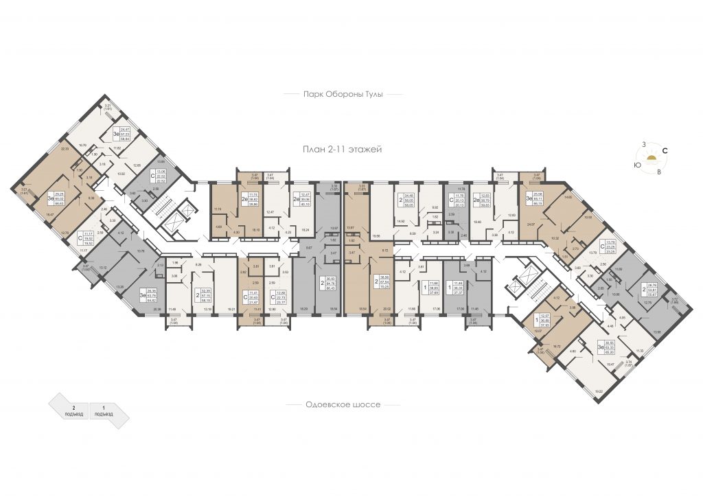
Поэтажные планировки 2-11 этаж

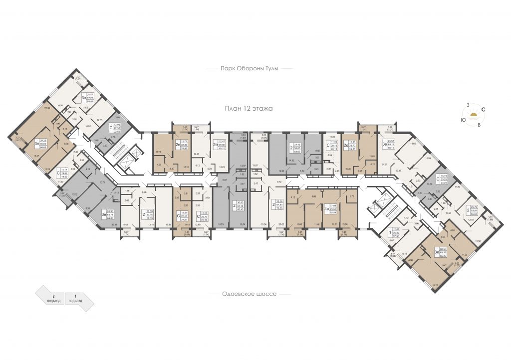
Поэтажные планировки 12 этаж

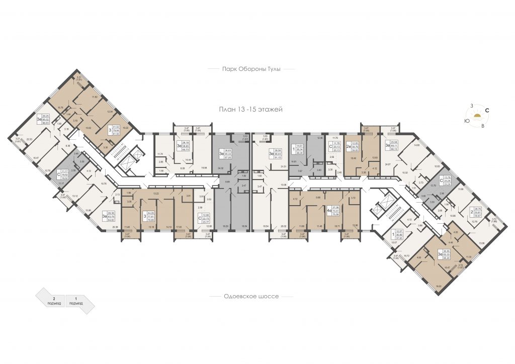
Поэтажные планировки 13-15 этаж









